全国服务热线
首页>>新闻动态>>福建防爆泄压
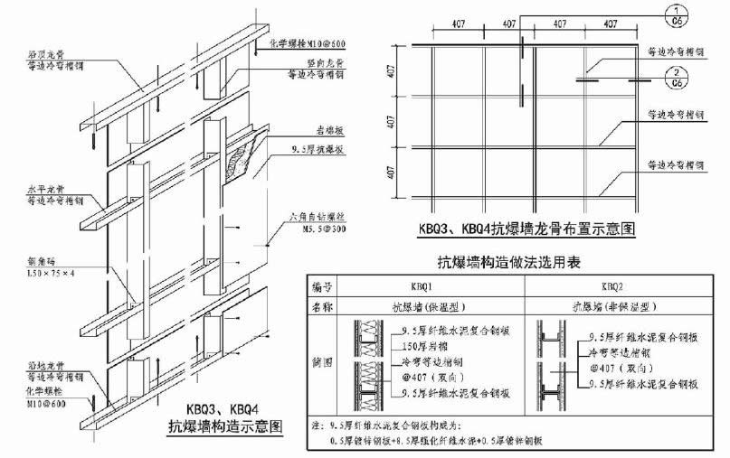
福建抗爆墙构造做法示意图仅以保温型示例,非保温型福建抗爆墙构造做法基本相同,可参照使用。
福建泡沫混凝土泄爆墙
福建纤维水泥板泄压墙
福建企口装饰面泄爆墙
福建控制室抗爆墙改造
福建变电站泄爆墙
福建装饰泄爆墙
福建企口饰面泄爆板
福建防爆墙施工
聚安环境专注福建抗爆墙,福建防爆墙,福建泄压墙,福建岩棉夹芯板泄爆墙,福建可拆卸变电站泄压墙,福建泄爆墙,福建抗爆吊顶,福建泄爆屋面安装
豫ICP备18040334号-1
QQ咨询
联系电话
微信扫一扫
返回顶部